| Особенности товара | |
| Конструкция палатки | Каркасная |
| Модель | Памир-30 |
| Сезон | Лето |
| Цвет | Голубой |
| Габариты | |
| Вес, кг | 255 |
| Высота боковой стенки | 216 |
| Площадь пола (м2) | 40.5 |
| Дополнительно | |
| Категории | Армейские палатки, Зимние армейские палатки, Показать все... |
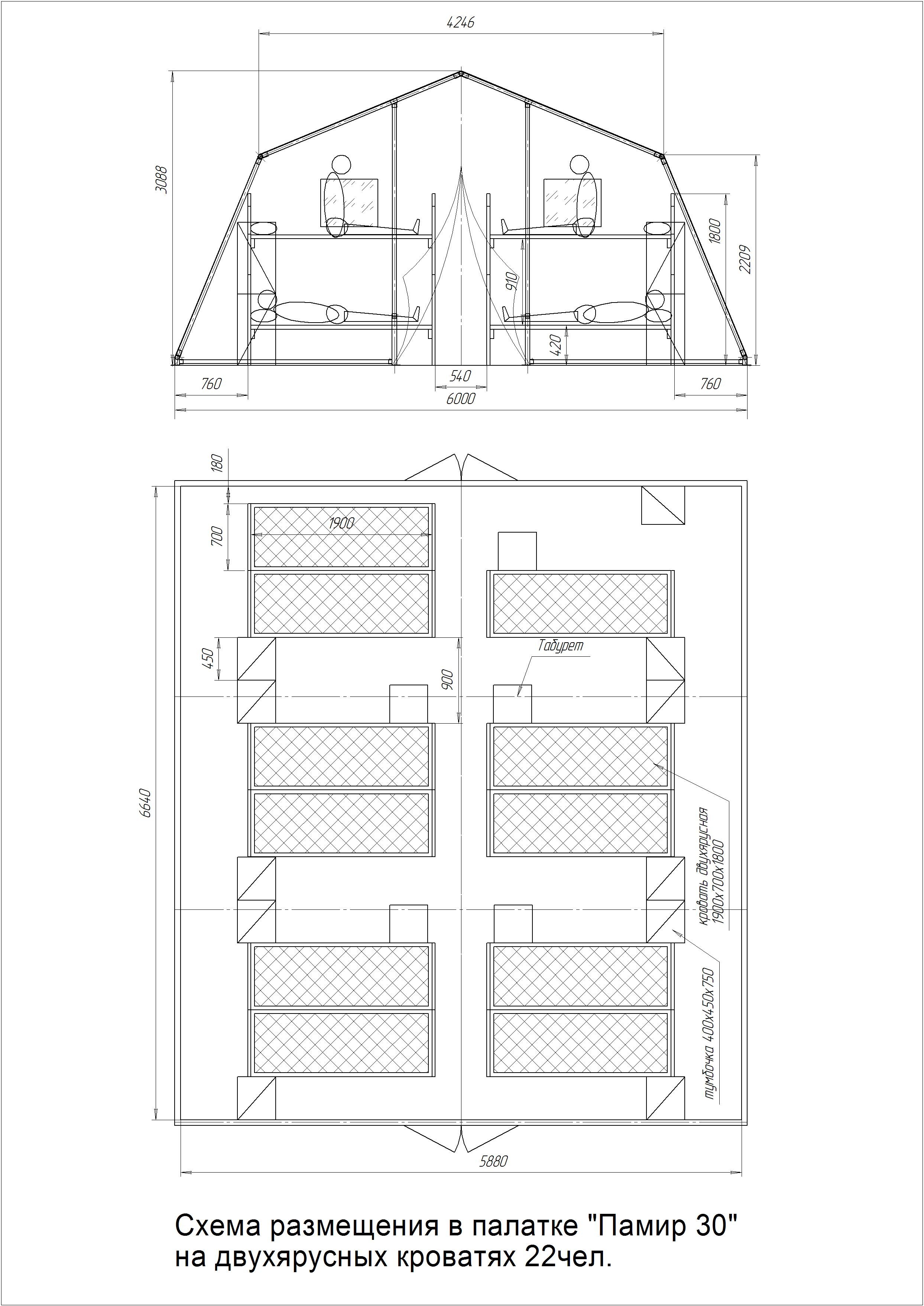
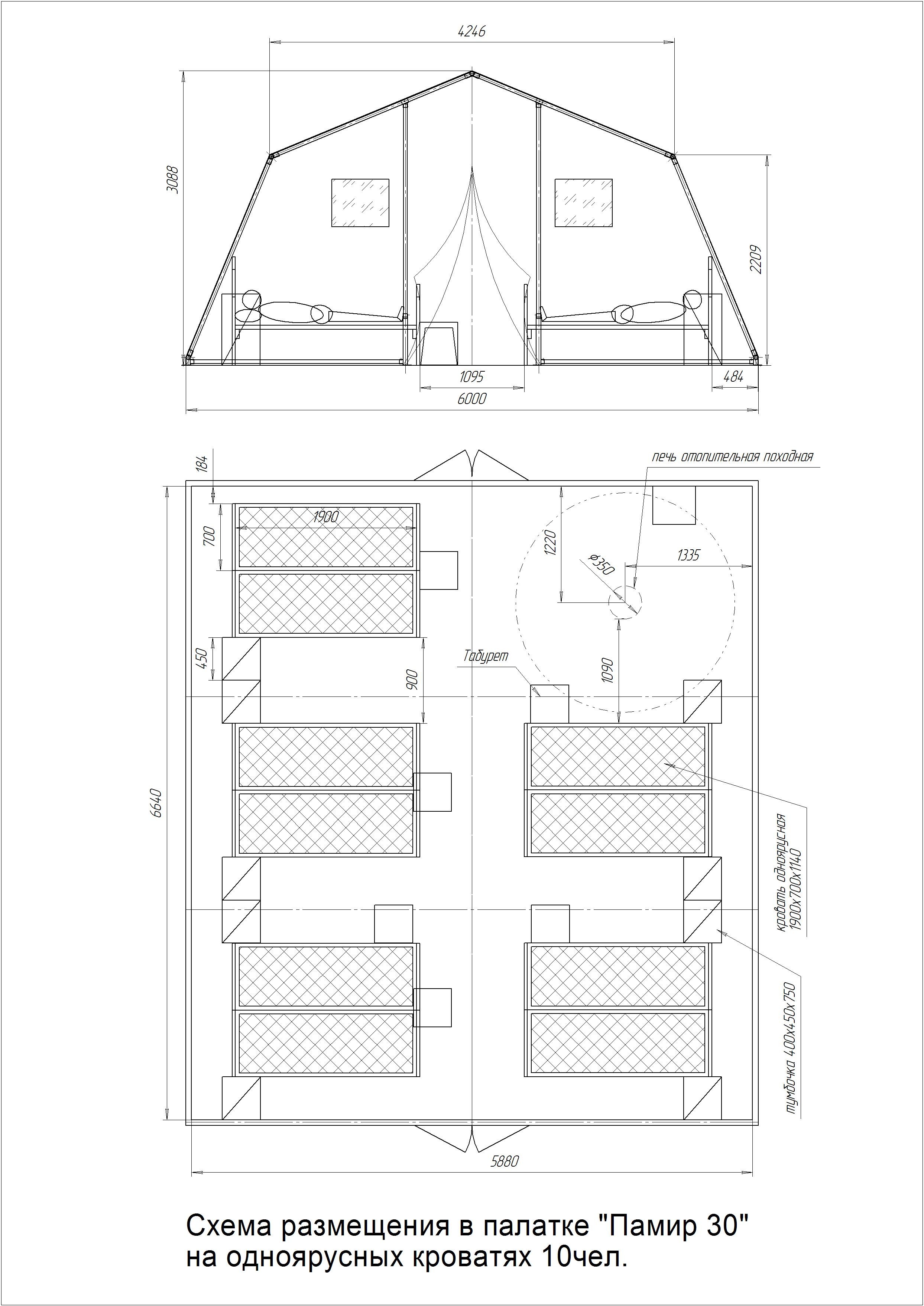
Палатка каркасная «Памир-30» предназначена для размещения людей, а также организации полевых медицинских пунктов, пунктов питания, столовых, штабов и т.п. в любое время года при температуре окружающей среды от -40°С ДО +40°С.
Габаритные размеры:
- длина-6750 мм
- ширина-6000 мм
- высота по гребню-3050 мм
- высота по стенке-2160 мм
- Масса не более - 255 кг.
- Полезная площадь- 40,5 м.кв.
- Кубатура воздуха - 110 м.куб.
Палатка состоит из следующих составных частей:
- Каркас из трубчатых звеньев, соединяемых между собой. Места соединений фиксируются пружинными фиксаторами.
- Намет внешний, изготовленный из водонепроницаемой ткани.
- Намет внутренний из бязи.
- Пол, изготовленный из водонепроницаемой ткани.
- На торцевых и боковых стенках расположены окна.
- Окна выполнены из противомоскитной сетки и оснащены светозащитными шторками.
Сборка и установка палатки ПАМИР-30 производится в следующей последовательности:
Внимание! В зимний период проводить установку и сборку палатки рекомендуется при температуре воздуха не ниже -25°С, т.к. при низкой температуре воздуха в поверхностном слое ткани с ПВХ покрытием могут образоваться незначительные микротрещины.
- Выбирается и подготавливается по возможности сухая и ровная площадка. Собирается верхняя часть каркаса (крыша). Далее устанавливается один ряд боковых стоек. Внимание! Стойки вначале устанавливаются только вдоль одной стенки. Это позволяет легко собрать палатку стоя на земле!
- На подготовленной площадке разворачивается пол и расправляется по всей площади палатки. На полу расстилается внутренний намет. Верхний гребень намета палатки должен быть расположен вдоль середины пола.
- Собранная часть каркаса переносится на внутренний намет и располагается по контуру пола.
- Внутренний намет крепится ремнями к трубам каркаса.
- Внешний намет навешивается на каркас таким образом, чтобы .совмещались верхние гребни, входы и окна в обоих наметах.
- Вставляются металлические листы дымоотводных отверстий.
- Устанавливаются боковые стойки со второй стороны каркаса.
- Оставшиеся ремни внутреннего намета, ремни пола и ремни внешнего намета крепятся к каркасу.
- Торцевые стенки внешнего намета крепятся к грунту при помощи колов.
- Веревочные оттяжки пропускаются через петли внешнего намета и закрепляются на вбитых в грунт колах.
- Внешний намет растягивается при помощи натяжителей. Внимание! Во время растяжки внешнего намета оба входа должны быть застегнуты полностью.
Свертывание палатки ПАМИР-30:
Свертывание палатки производится в порядке обратном установке. Внимание! Свертывание наметов палатки производить только после тщательного просушивания. В зимнее время в первую очередь необходимо стряхнуть весь снег с крыши палатки. (Если это невозможно, то после транспортировки немедленно просушить палатку и уложить ее заново).
- Отвязываются оттяжки и вынимаются колы из грунта.
- Отстегиваются ремни пола, внешнего намета и внутреннего намета от каркаса по низу.
- Освобождаются стойки по одной из боковых стенок палатки. Боковые стойки отсоединяются путем нажатия на кнопку фиксатора. Внимание! Отсоединяя стойки палатки, придерживайте каркас руками. Палатка опускается на грунт.
- Снимается и складывается внешний намет.
Внешний намет складывается при застегнутом входе и окнах следующим образом:
- Намет складывается пополам по гребню.
- Торцевые стенки намета заворачиваются вовнутрь.
- Боковые стенки намета заворачиваются на крышу.
- Намет укладывается, учитывая габариты упаковочного чехла.
- Оставшиеся ремни внутреннего намета отстегиваются от каркаса.
- Разбирается каркас палатки.
- Сворачивается пол.
- Все части палатки упаковываются в чехлы и зашнуровываются.
Внутренний намет складывается аналогично внешнему намету.
Указания по эксплуатации.
За установленными палатками требуется постоянное наблюдение и уход. Для этого необходимо выполнять следующие требования:
- В ветреную погоду необходимо периодически проверять равномерность натяжения оттяжек и прочность забитых колов, т. к. плохое крепление при сильном ветре может привести к сносу палатки. Во время сильного ветра нельзя оставлять открытыми входы и окна, а также поднимать стенки палаток со стороны ветра.
- В зимнее время необходимо удалять (стряхивать) снег с крыши, т.к. слой снега более 8-10 см может вызвать разрыв ткани и повреждение каркаса. При установке палатки при температуре воздуха ниже -25°С в поверхностном слое ткани с ПВХ покрытием могут образовываться незначительные микротрещины.
- Во время дождя оттяжки рекомендуется слегка ослабить, т.к. веревки и ткань при высыхании укорачиваются и могут разорваться. После высыхания оттяжки следует подтянуть. Напольники палатки необходимо засыпать землей, чтобы стекающая по земле вода не проникала в палатки.
- В теплую и тихую погоду палатки следует проветривать и просушивать, открывая окна, входы или поднимая стенки палаток.
- В случаях установки палатки под деревьями все сучки, касающиеся наметов палатки, должны быть срублены. Верхний намет палатки необходимо периодически обметать и встряхивать для удаления с него наносного сора, листьев и пыли.
- Не допускается складывание различных предметов в непосредственной близости от стенок палатки во избежание трения и нарушения ткани в местах касания.
- При эксплуатации печей необходимо строго соблюдать правила противопожарной безопасности. Не допускается использование в палатке открытого огня.
- Запрещается делать в наметах палатки прорези для ввода электропроводов; пришивать или прикалывать к стенкам палатки плакаты и картины. Загрязнять палатки маслом, краской, а также обрабатывать намет палатки химическими препаратами.
Хранение и транспортировка.
- Упакованная палатка должна храниться в проветриваемом помещении при относительной влажности воздуха не более 80%. Хранение палатки в сыром виде не допускается.
- Через каждые шесть месяцев хранения необходимо производить перекладку наметов.
- Транспортировка уложенной палатки допускается любым видом транспорта, исключающим проникновение влаги, загрязнения и механические повреждения.
Оплата
- Наличная оплата
- Безналичная оплата
- Наложенный платёж (предоплата 10-30%)
- Яндекс, QIWI, Сбербанк Онлайн
Доставка
- Курьерская доставка
- Почта России (предоплата 10-30%)
- Почта России EMS (до 30 кг.)
- ПЭК, Деловые линии, ЖелДор, КИТ, Энергия, Байкал-Сервис
- Индивидуальный подход
УНИКАЛЬНОЕ ПРЕДЛОЖЕНИЕ ДЛЯ КЛИЕНТОВ Сети армейских магазинов «Гарнизон»
Предлагаем рассмотреть приобретение палаток с Обратным выкупом.
Это значит, что теперь не надо искать палатки в аренду, не надо думать куда деть палатку, которую купили и использовали, а можно просто предложить обратный выкуп Гарнизону! Подробнее можете уточнить по телефону у наших менеджеров.
![]() | ЗАРАБОТАЙТЕ ОТ 150 000 К 9 МАЯ Мы выделяем формат малогабаритной торговой промо-стойки, для СТАРТА вашего бизнеса, который позволит начать с минимальными инвестициями и быстрой окупаемостью. Вы сможете занять место для торговой в точки в самых проходимых местах, при этом заняв минимальную площадь. «День Победы» – это масштабный праздник для всего населения нашей страны, миллионы людей выходят на улицы, чтобы отпраздновать победу, все эти люди будут вашими клиентами, которые не скупятся на покупку военно-патриотической атрибутики. Подробнее тут: www.fr.sp-snab.ru |





.jpg)








































